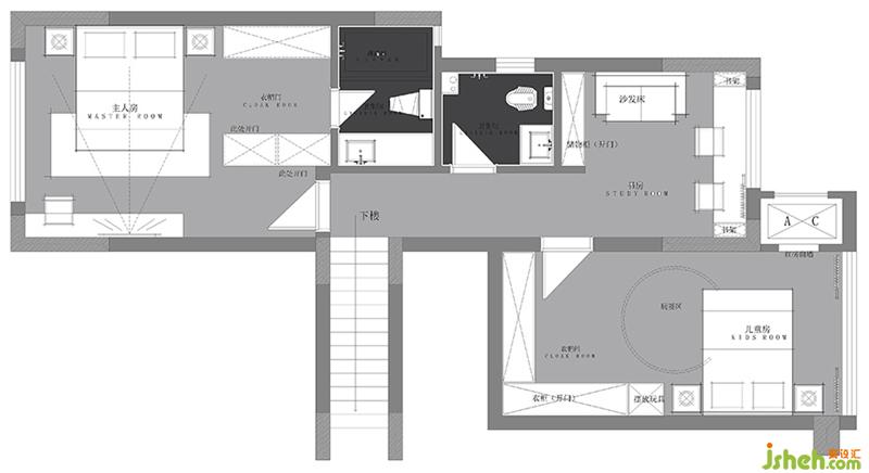
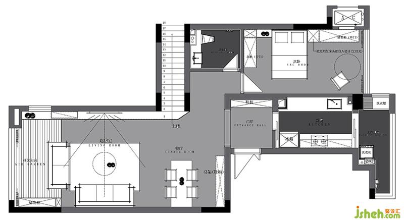
項目丨Location:龍湖紫云臺
建筑面積丨Square meters:165㎡
戶型丨House type:躍層
風格丨style:現代
硬裝設計丨Structure:DE設計事務所-吳方臣
軟裝設計丨Decoration:D.ART軟裝服務機構-曹瑞雪
施工團隊丨Project:DE工程中心
攝影丨Photography:隙間空間攝影
業(yè)主需求
1)足夠大的收納空間,同時分類儲物;
2)客廳及休閑區(qū)域更開闊,空間更通透;
3)樓道不壓抑;
4)二樓需要一個小起居室及書房功能,可以偶爾打個游戲。
餐-廳
餐廳墻面飾面和頂面相交呼應,讓這種延展的感覺直至客廳。餐廳頂面和客廳頂面使用不同的材質,同時間隔處使用漫反射光源,層次感更強。

廚房為封閉式廚房,墻面淺色系磚打底,讓櫥柜材質質感更加凸顯。一體式水槽和臺面巖板完美貼合,拒絕衛(wèi)生死角。
客-廳

把陽臺和整個客廳融為一體,整個空間的視覺延伸感更強。同時客廳陽臺內地臺的加入又賦予陽臺更多的可能性。


客廳斜頂的造型弱化了和客廳與陽臺之間梁的高度,同時漫反射光源的加入讓整個客廳頂面錯落有致。