“ 05 言語
在場景中尋找內心深處的對話
世界上最偉大的藝術和最優(yōu)征服力的武器是語言,人類的進步與文明就是從擁有語言溝通開始的。空間中隨處可見的關于蘇州味道的言語,是餐廳設計給予人的溫暖。在這里,讓每個人都能尋找內心深處的對話。
The greatest art in the world and the best weapon of conquest is language. Human progress and civilization begin with language communication. Words about Suzhou flavor can be seen everywhere in the space, which is the warmth that space gives people. Here, everyone can find the inner dialogue.







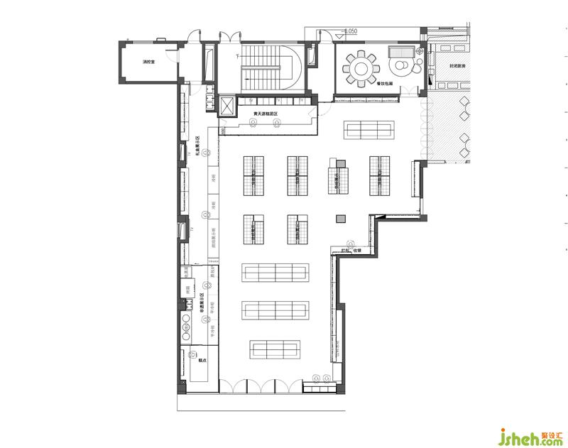
平面圖
效果圖示意
更多餐廳設計請關注聚設匯裝修平臺:
掃描二維碼關注我們的微信