▼艙體操作臺制作過程The process of making cabin worktop

▼過程分析圖Process Diagram
▼原始建筑墻體組成的空間十分消極 The space made up of the original walls is very negative
▼移除墻體后,環(huán)繞柱子設置操作臺,與主入口和大堂均形成良好的關系 After removing the walls, the worktop has been set around the beam, forming a good relationship between both the main entrance and the lobby
▼設置球形艙體,以便于設置儲物空間和隱藏設備 Setting up spherical cabin to allow for storage space and concealment of equipment
▼施工完成之后,由于業(yè)主希望顧客可以進入艙體內部進行體驗,所以另外設置了一個操作臺After completing the construction, an additional worktop has been set up since the client wanted to provide a cabin-experience for customers
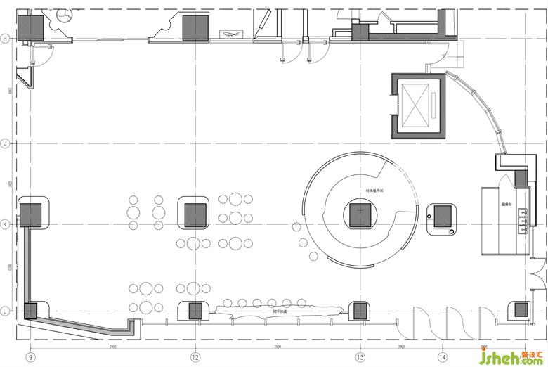
▼平面圖Floor plan
更多咖啡制造局設計請關注聚設匯裝修平臺:
掃描二維碼關注我們的微信