
L先生還酷愛閱讀,博覽群書,書房內擺滿了各類書籍典藏,并為他閱讀或創(chuàng)作提供了安靜的場所。借助天井采光,將跑步機安放其下,酣暢運動之際,與自然也近在咫尺。此外,末端的一扇門同樣具備機動可變性,能因需實現影音室與書房的聯通或獨立。
拍攝當天,正值女主人在家,她不由得感嘆道:“回想起我們決定重塑這個家的那刻,眼前的一切都證明了我們的選擇多么正確和值得!”這一瞬,家的情感與幸福仿佛被賦予了實體形態(tài)。誠然,家就是為家人帶來美好生活體驗,而這也正是我們對每一座私宅的設計愿景與價值導向!
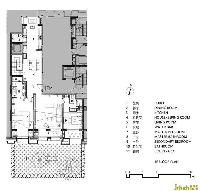
1F平面圖
B1F平面圖
更多豪宅設計請關注聚設匯裝修平臺: