HLJY.design
Nordic style·北歐
設計 / CD&HLJY ? 陳薇
Design director /Chenwei
項目面積 / 110m2
Area / 110m2
設計風格 / 北歐
Design style / Northern Europe
Simplicity is not the goal. It is the by-product of a good idea and modest expectations.”
簡單,不是目的。它是好想法和謙遜期許的副產品。
–Paul Rand
兩人兩貓一日三餐是這個家最溫暖的詮釋,本案例是一對年輕的小兩口,房屋為三室兩廳雙衛(wèi),成都家居設計整個空間結構中動靜分區(qū)合理,整體采光性好。女主人希望有可容納兩個人同時使用的獨立書房,獨立衣帽間。在滿足需求的的前提下,以適當的形式感將立面造型與空間層次感結合起來,營造出輕松靜謐的空間氛圍。
項目的戶型改動不大,將原本衣帽間門調整到原有儲物間位置,形成過道獨立端景位置。其次將次衛(wèi)生間做三分離衛(wèi)生間,方便使用。
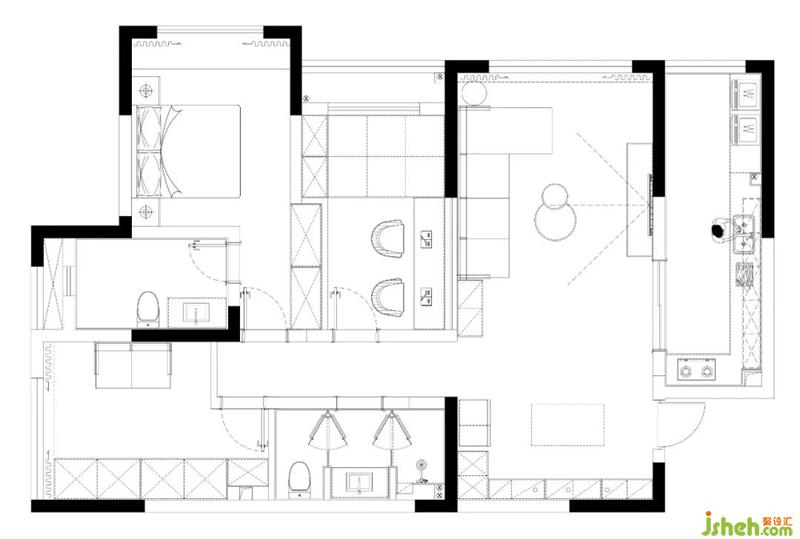
原始平面圖
平面布局圖
HLJY.design
Nordic style·北歐
▼ 客廳/A living room


客廳整體色調采用奶白色搭配原木,營造出清新的空間感。原木貓架的設計,不僅讓貓咪有了嬉戲玩耍的地方,也讓整體空間延伸,增強視覺感。摒棄過度的華麗裝飾,簡潔的線條,溫和的色調,安寧地詮釋出靜謐的格調。



將入戶儲物柜以及餐邊柜整體處理,增加空間整體性。原木餐座椅與原木零食柜相呼應,白色系的主色調讓空間中的不同元素可以彼此連貫,材質、色系之間對應,釋放家中的穩(wěn)重恬靜與平和。在這里就餐食欲一定會倍增!
▼ 廚房/Kitchen

根據業(yè)主的烹飪習慣,在成都家居設計中摒棄傳統(tǒng)門檻石以及瓷磚,將客廳地板延續(xù)到廚房位置,使空間更簡潔,整體性也更強。并在墻面采用專用防水漆,增加空間色彩層次。