-茶水間-
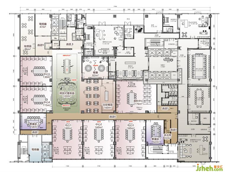
-七層辦公區(qū)平面圖-
傳統的固定功能辦公空間劃分往往會把員工在獨立的空間中隔離開來,缺乏互動和合作的機會限制了創(chuàng)造力和想象力。基地總部設計師將不同的功能區(qū)域分離開來,并根據的需求進行靈活組合。在一個辦公空間中,可以將工作區(qū)、會議區(qū)、休閑區(qū)等不同功能的區(qū)域分開,通過解構空間可以更好地利用資源,提升人們的體驗感,促進交流與合作,并適應不斷變化的需求。創(chuàng)造出更加靈活多樣、舒適愉悅的辦公空間。
-接待區(qū)-
-開放式會客廳-
穹頂之下,光影律動,透過自然光引入室內,光與影共存相生,彼此成就;在東方的美學理論中,造就了實和虛、靜和動的辯證概念。設計的多形態(tài)及場景組合,游走于古典與現代,結合理性與藝韻,激活空間生命力,呈現別樣的辦公會客場所。


-董事長辦公區(qū)-
董事長辦公室在整個空間做個四個空間序曲,分別是辦公區(qū)、會客區(qū)、茶室、休息區(qū)他們之間既有分割又有獨立的空間形式,空間以木色和灰白之間的淺色色階為基調,整體呈現為系統性與邏輯性、商務性與藝術性、獨立性與互動性的融貫一體。摒棄繁復華麗裝飾,體現空間的不凡氣度,用材質、光影、承載商務會客與獨處休閑的不同場景。


-休息區(qū)-


劉偉婷設計師有限公司創(chuàng)辦人 Founder, Flora Lau Designers Limited 香港室內設計協會執(zhí)行委員會成員 HKIDA Executive Committee Member
設計收費:1200 元/平
擅長類型: 售樓處、樣板房