項目名稱方舟-MillionCuriosity店鋪設計
設計師:羅強強
設計單位:廈門夕四設計事務所有限公司
項目所在城市 泉州-南安
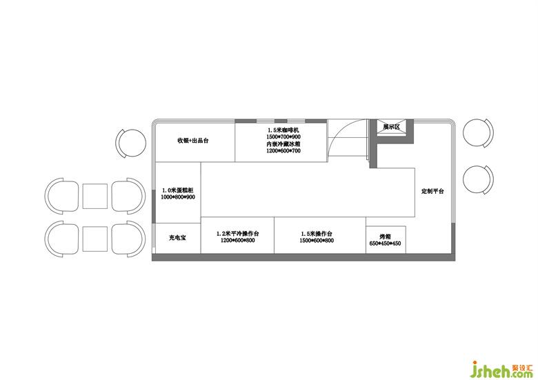
項目面積11.8m2
項目總造價8萬
或許很久以前,人類對生存的這顆星球就不再有安全感。很多年來,人類一直沒有放棄尋找傳說中的諾亞方舟。MillionCuriosity·方舟店是品牌獨立外賣店店鋪設計,可以自由放置在商場,廣場等區(qū)域,自成系統(tǒng),國內互聯(lián)網時代沖擊下成為一種小而精且緊跟時代的普遍的店鋪。柔光不銹鋼與長虹玻璃材質給方舟帶來了神秘感與科技感,圓弧形的窗洞設計與精致的線條在視覺形態(tài)上與太空相關聯(lián),充滿未來感。





