設計師:辰沙設計
攝影:藍灰
施工:正成裝飾
房子面積:68㎡
設計風格:北歐混搭
當你在夜晚抬頭看著星空,因為我住在其中一顆星球上,因為我在那顆星球上對著你笑,對你而言,就像整個星空都為你而笑一樣,你擁有了為你而笑的整片星空。-----《小王子》
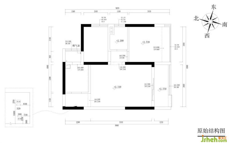
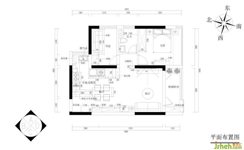
戶型設計
業(yè)主喜歡空間開闊,把原來狹小的廚房空間改成了開放式,同時做了一個大儲物柜放冰箱和洗衣機。客廳選用了藍色和黃色的撞色來提亮空間,在單椅的選擇上,選擇了一個格子的作為跳色。主臥選用了一個水泥質感的衣柜,偏工業(yè)風,更符合業(yè)主的喜好。

廚房
設計師將原戶型的玄關和廚房打通,增加廚房的使用面積,使整個空間更加開闊。室內設計師
六邊形地磚和木紋地磚相拼接在無形中劃分廚房與客廳的區(qū)域,層次遞進。室內設計師
粉色與綠色結合的廚房,讓你在做飯的時候隨時感受到草的清香與花的甜膩,既滿足心中向往的那份浪漫的少女情懷,又能使整個空間變得浪漫舒緩、靈動自然。室內設計師

廚房增設了廚房儲物柜,既能隱藏冰箱的厚度,又能存放洗衣機,大大增加了收納空間,使整體顯得干凈利落。
玄關的粉色麋鹿與廚房粉色瓷磚相呼應,仿佛一頭麋鹿奔跑在浪漫的森林中,營造一種自然、歡快、輕松的氛圍。