影廳設計結合結構體塊與色彩進行設計,影城設計在滿足影音效果需求的基礎上,在暗色調之上疊加少量亮橙色與結構,讓影廳更具動感與沉浸感。
The design of the cinema combines structural blocks and colours. On the basis of meeting the needs of audio-visual effects, a small amount of bright orange and structure are overlaidon the dark tones to make the cinema more dynamic and immersive.

影廳內部 Inside the Cinema
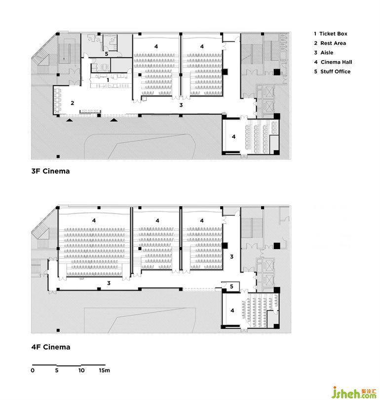
平面圖 Plan
更多影城設計請關注聚設匯裝修平臺: